spigot-cross-tee

Spigot Cross Tee

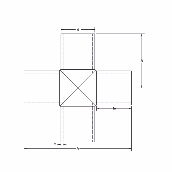
Rainson HDPE Spigot Cross Tee is a vital pipe fitting used in High-Density Polyethylene (HDPE) piping systems. This type of tee features a "plus" or cross-shaped design, allowing for the connection of four pipes at right angles to one another. The spigot end of the cross tee is designed to fit into the corresponding socket of an HDPE pipe, creating a secure and leak-free joint through heat fusion techniques. Made from high-quality HDPE material, the spigot cross tee exhibits exceptional strength, chemical resistance, and UV resistance, making it suitable for a wide range of applications, including water distribution, sewer systems, industrial processes, and more. Its robust construction and reliable performance ensure a smooth flow of fluids throughout the pipeline network.

Key Specifications
Material PE100 SDR 11 – 17
Standard EN 12201-3, 1555-3
d1 (mm) Product Code d4 (mm) Z (mm) h1 (mm)
63 HSCT63 214 63 106
75 HSCT75 258 70 127
90 HSCT90 284 79 141
110 HSCT110 314 82 157
125 HSCT125 355 87 177.5
140 HSCT140 377 92 188
160 HSCT160 415 98 208
180 HSCT180 460 105 225
200 HSCT200 476 112 239
225 HSCT225 521 120 256
250 HSCT250 580 130 284
280 HSCT280 674 139 335
315 HSCT315 695 150 352
Related Products
WhatsApp
+91 99099 38055
Call Now!
+91 99099 38055