spigot-tee

Spigot Tee

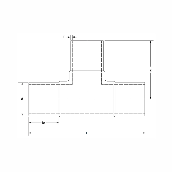
Rainson HDPE Spigot Tee is a versatile and essential pipe fitting used in High-Density Polyethylene (HDPE) piping systems. The tee design allows for the branching of pipelines in a "T" shape, enabling the connection of three pipes at right angles to each other. The spigot end of the tee is designed to fit into the corresponding socket of an HDPE pipe, creating a secure and leak-proof joint through heat fusion techniques.

Key Specifications
Material PE100 SDR 11 – 17
Standard EN 12201-3, 1555-3
Ød (mm) Product Code D (mm) le (mm) Z (mm)
63 HST63 216 63 107
75 HST75 259 70 130
90 HST90 289 79 140
110 HST110 320 82 157
125 HST125 354 87 175
140 HST140 374 92 185
160 HST160 410 98 203
180 HST180 451 105 222
200 HST200 475 112 235
225 HST225 520 120 263
250 HST250 580 130 290
280 HST280 690 139 338
315 HST315 712 150 352
355 HST355 780 165 385
400 HST400 860 180 438
Related Products
WhatsApp
+91 99099 38055
Call Now!
+91 99099 38055